House Dayton

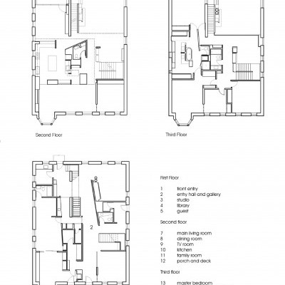
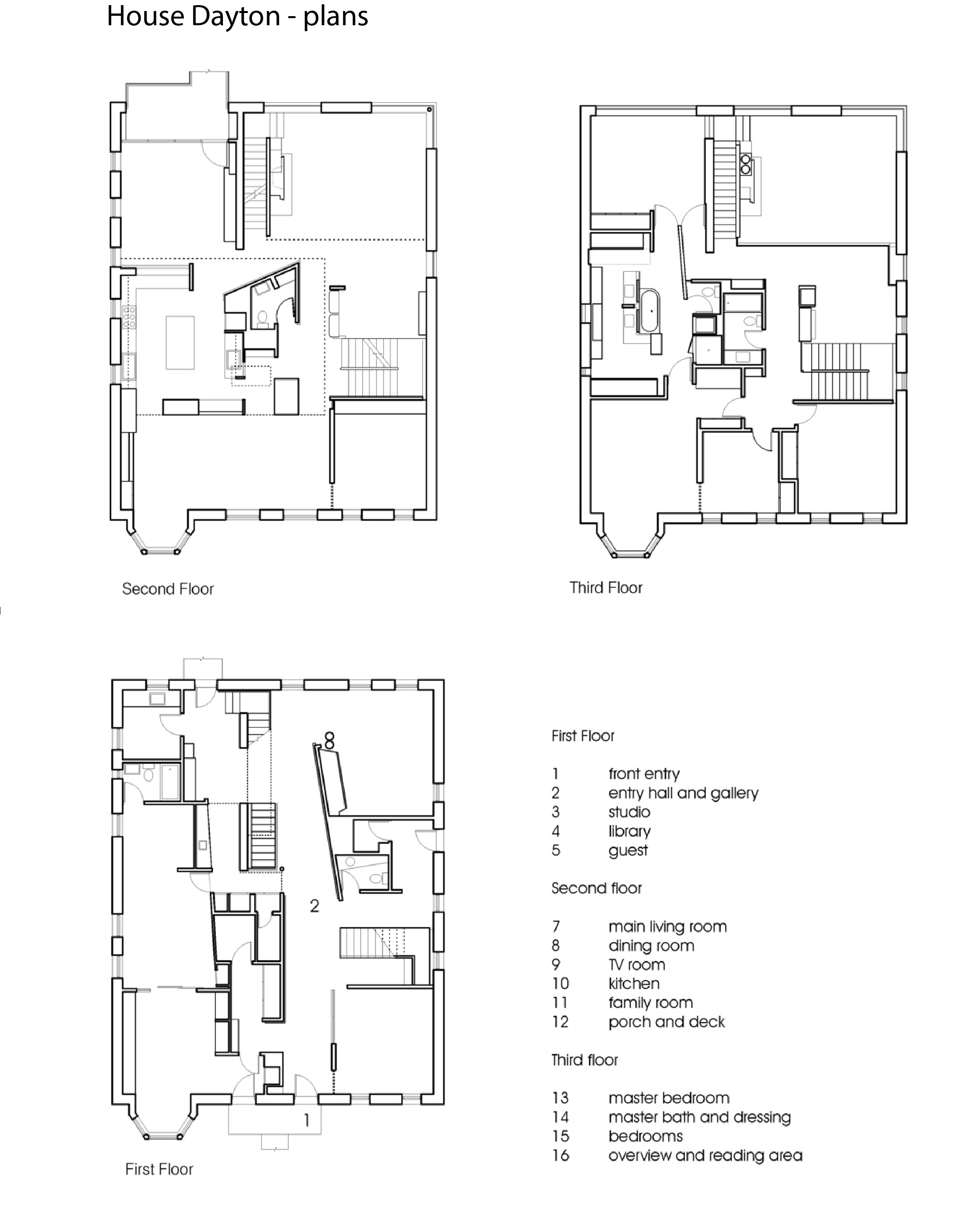
Several agendas were part of this renovation of an existing building into single family residence. First was to maintain livability and to work with varying levels of occupancy from a single person at home during the day to fuller occupancy at other times. This was addressed first by separating the house into different service levels - with main living on the second floor, with the living and family rooms and other daily activities clustered around a central kitchen. All the service activities are on the ground floor, which can effectively be closed off, and all bedrooms are on the top floor.

Some sub-patterns exist within this larger sensibility: there is a line-up on one side of the main living floor, from dining nook to home office to kitchen to family room and then outside deck and garden - allowing a single person to have small house living in a larger shell.

The larger idea was to provide a sense of quality and excitement, in the background of a livable house. The details were to provide a warm sense of the modern world, playful in scale, material and color, working with the light.

Main Spaces

The significant living room features display of unique art and artifacts; its large windows were provided to allow generous light even in the grey Chicago winters. ​It offers both drama and contemplation with special solutions for its corners that both enclose and extend the space. The light is subdued, to allow a comfortable use of the large space.

Special spaces

​Details are used throughout the house to solve unusual problems or develop interest in another scale for the secondary spaces. The entry stair is highlighted by a massive ribbon of steel, capped by a gentle wood rail that extends vertically to hold the house together. The master bath is both open and yet has separation, the central sinks allowing for use by two people of very different height - together and separate at the same time. The kitchen is arranged to allow for varying use patterns, from a single master chef in charge or as central hub for social gatherings.

First floor

The first floor is arranged more as a narrative, going from elegant but simple entry on the street to a service entry on the backside of the residence. The arrangement of its “parts” is cinematic, promoting movement and exploration, in contrast to the main spaces on the second floor.

More spaces

On the second floor, smaller spaces are woven into the larger scheme; small viewing slots provide peeks from one space to another, making a large floor more connected. ​

Outside

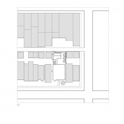
The exterior is extensively developed. A large garage is configured in a way to “lock in” with the open space, allowing for a large lawn on the first floor, and a sizable private deck, garden, and vegetable garden on the second level, just outside the kitchen and family room. The garage features very sizable trees on the upper level, a significant bit of landscape for this urban setting. The front of the house was left as is, in the interest of fitting in with the neighborhood and maintaining privacy. Only the detailed entries give an indication of what can be found within.

Details

Particular materials and details can be found within the house, giving unexpected delight and yet another level of interest. In some cases the details feature unusual patterned glass, or particular sculpting of walls and metal.

Dayton plans and spaces

These drawings outline the overall design of the house, an oasis in a central urban neighborhood. Extensive drawings and control of the construction allowed for the unique solutions to be worked into the process. The architecture was carefully integrated into the field work as part of the process. In essence the architect was the construction managr of a carefully selected team of contractors.

Models

Models were used extensively to develop the ideas of the house. Inspiration was taken from some of the more significant architectural examples known, and then reconsidered for this situation. ​

Conceptual drawings

​It is difficult to capture the sense of the house through drawings - it has a 3 dimensional quality, one which is made more poignant through moving through the house, seeing different solutions in different places, the changes in scale. A few unusual drawings were done in an effort to capture that sensibility - one of layered events, varying in technique and scale, subtle yet available.