- Architecture
- Small
- Industrial Loft
Industrial Loft
Transforming industrial space into a place to live is of interest for those who like to make things. There is something in the spirit of the industrial space that speaks beyond mere pragmatics. However, living has its own requirements which are different than the ethos of place. This project involved combining both modes, without compromising either.
Original existing conditions were promising but not glamorous. The view was extraordinary.
The project was to make a home for a disabled Vietnam veteran who wanted to live in an industrial building he owned. The building had a lovely view over downtown Pittsburgh. The garage doors provide a view and open up in good weather.
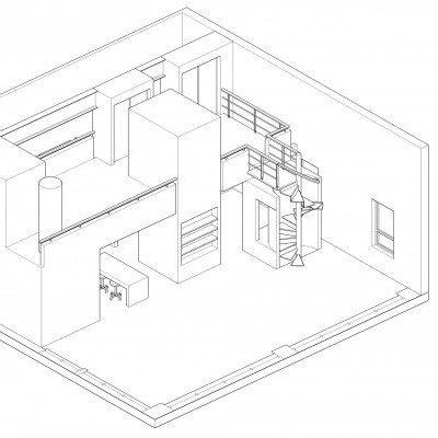
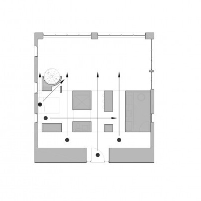
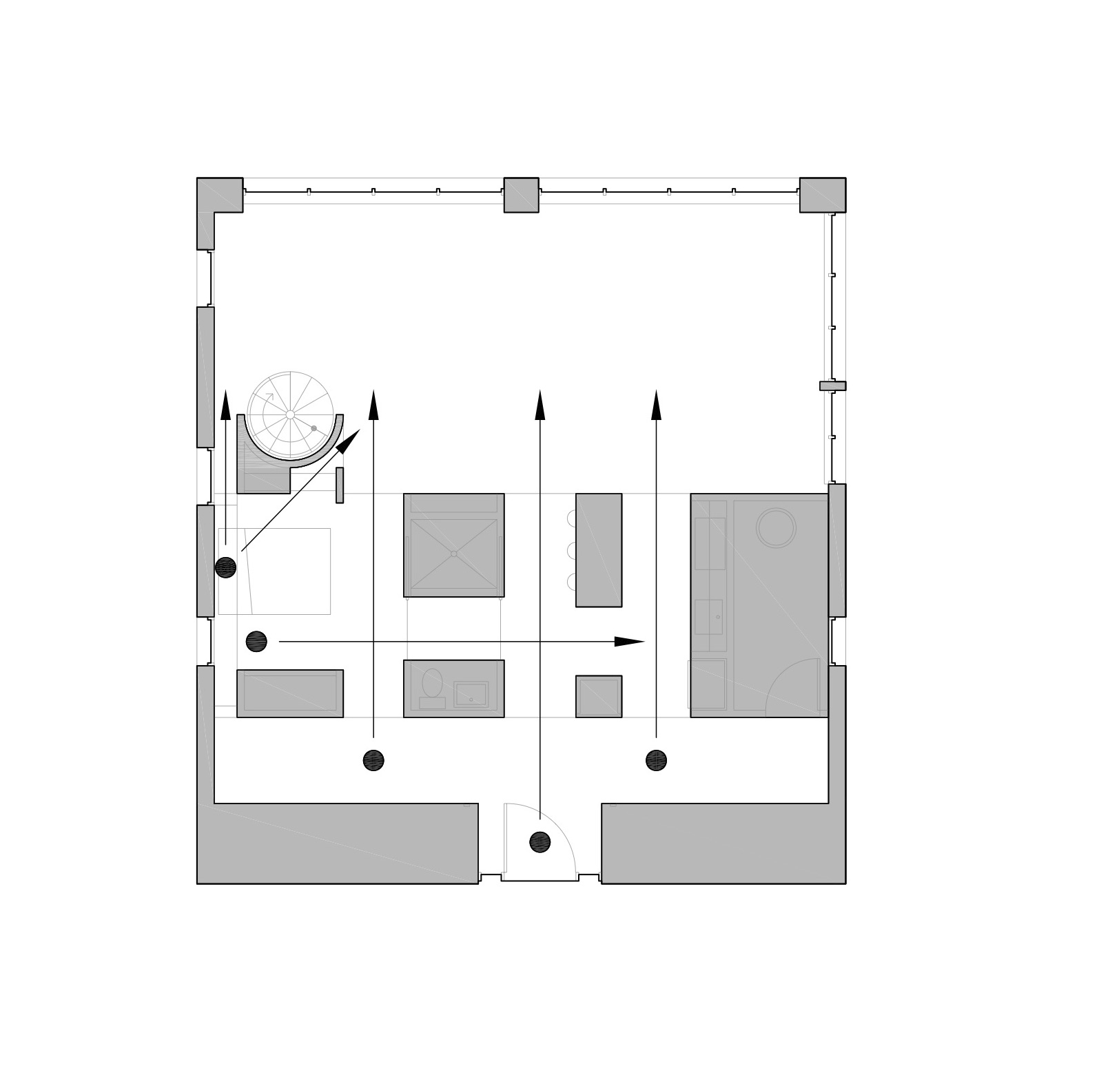
Due to the client’s situation, the project was split to have an open plan on the main level and allow for guests to stay on the bridge. A few simple volumes were placed for privacy, while being easy to navigate. The project was designed so that the client could be his own general contractor, to give maximum impact and character for low cost.
Sometimes architecture is not about the fancy details or the form, but just doing the right thing. This apartment was carved out of an industrial building, and made into a special home for a disabled client. Designed simply, he was his own general contractor. Extremely excited about the project, he felt the solution had a fitting character for the site and his ideals.
The design idea was simple: to make a bridge and divide up the undefined space into separate areas: a large open living area by the windows; kitchen, dining, bath and sleeping underneath; guest room and storage above. The plan allowed for ease of movement with separate volumes to make for variation in sight lines and views. The entryway was a tall vertical slot, where he could hang installation art for unusual viewing, in the apartment, tucked out of the way in this special space.